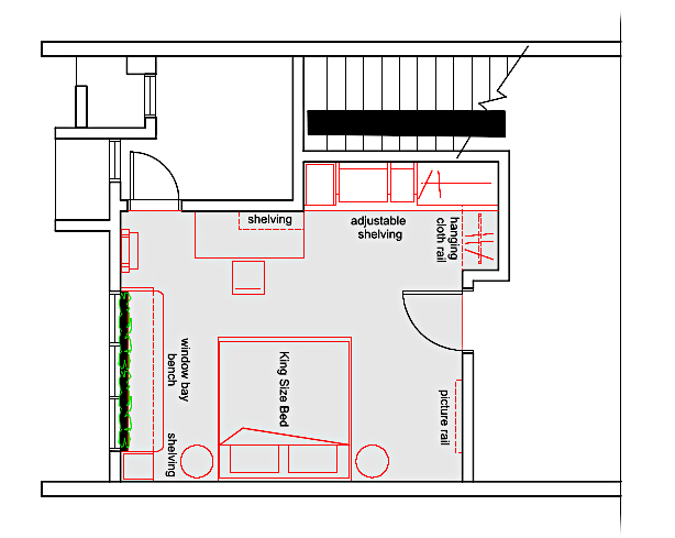
Previous Image Next Image Rawang master layout Rawang master layout Rawang master layout Share this: Share on Facebook (Opens in new window) Facebook Share on WhatsApp (Opens in new window) WhatsApp Share on X (Opens in new window) X Share on Pinterest (Opens in new window) Pinterest Like Loading...